当前位置:首页->一种带动力的同步带过渡装置

 一种带动力的同步带过渡装置

 
【申请公布号:CN108974796A;申请权利人:沙长泰智能装备有限公司;发明设计人: 胡思潮; 赵柏林; 漆瑞; 方勇燕; 周阳; 范海波; 鲁海浪; 陈建;】
 
摘要:
 
一种带动力的同步带过渡装置,安装在链板输送机头尾,包括机架、主动轴、从动轴、主同步带轮、从同步带轮、V形同步带、链轮、压板、轴承座、滑轨、螺杆等,V形同步带在主从同步带轮上连接成一个环形;从同步带轮内带有轴承,安装在从动轴上,从动轴通过压板固定在机架上;主同步带轮安装在主动轴上,主动轴两端的轴承座和滑块安装在机架上对V形同步带进行张紧;主动轴上装有链轮,动力通过链轮从外部传入。本发明结构简单而可靠,可有效地节省空间,降低成本,大大地增加输送机对接处窄纸卷输送的稳定性,降低在输送机对接处窄纸卷的损坏。 
 
主权项:
 
1.一种带动力的同步带过渡装置,其特征在于:包括机架、主动轴、从动轴、主同步带轮、从同步带轮、V形同步带、链轮、压板、轴承座、滑轨、螺杆, V形同步带在主从同步带轮上连接成一个环形;从同步带轮内带有轴承,从同步带轮安装在从动轴上,从动轴通过压板固定在机架上;主同步带轮安装在主动轴上,主动轴两端的轴承座和滑块安装在机架上并对V形同步带进行张紧;主动轴上装有链轮,动力通过链轮从外部传入。 
要求:
1.一种带动力的同步带过渡装置,其特征在于:包括机架、主动轴、从动轴、主同步带轮、从同步带轮、V形同步带、链轮、压板、轴承座、滑轨、螺杆, V形同步带在主从同步带轮上连接成一个环形;从同步带轮内带有轴承,从同步带轮安装在从动轴上,从动轴通过压板固定在机架上;主同步带轮安装在主动轴上,主动轴两端的轴承座和滑块安装在机架上并对V形同步带进行张紧;主动轴上装有链轮,动力通过链轮从外部传入。
 
 
一种带动力的同步带过渡装置
技术领域
 
本发明属于输送设备,涉及链板输送机上带动力的同步带过渡装置。
 
背景技术
 
随着造纸行业的迅速发展,窄纸卷越来越普遍。现有的输送纸卷的链板输送机的过渡装置,输送窄纸卷不顺畅,不稳定,损坏纸卷。
 
发明内容
 
本发明旨在提供一种带动力的同步带过渡装置,用于窄纸卷的输送,可有效地解决窄纸卷的输送受损和纸卷输送不稳定的问题。
 
本发明的目的通过下面的技术方案实现:
 
一种带动力的同步带过渡装置,包括机架、主动轴、从动轴、主同步带轮、从同步带轮、V形同步带、链轮、压板、轴承座、滑轨、螺杆, V形同步带在主从同步带轮上连接成一个环形;从同步带轮内带有轴承,从同步带轮安装在从动轴上,从动轴通过压板固定在机架上;主同步带轮安装在主动轴上,主动轴两端的轴承座和滑块安装在机架上对V形同步带进行张紧;主动轴上装有链轮,动力通过链轮从外部传入。
 
所述V形同步带由柔性材料制造,所述柔性材料包括V形塑料链板、橡胶、聚氨酯。
 
本发明一种带动力的同步带过渡装置一般安装在链板输送机头尾。
 
本发明的优点:结构简单而可靠,可有效地节省空间,降低成本,和同类产品相比,可以大大地增加输送机对接处窄纸卷输送的稳定性,降低在输送机对接处窄纸卷的损坏。
 
附图说明
 
一种带动力的同步带过渡装置
图1为一种带动力的同步带过渡装置的主视图。
 
一种带动力的同步带过渡装置
图图2为一种带动力的同步带过渡装置的左视图。
 
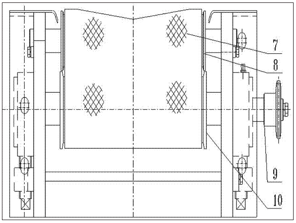
图中:1-从动轴,2-主动轴,3-压板,4-滑轨,5-螺杆,6-机架,7-V形同步带,8-从同步带轮,9-链轮,10-主同步带轮,11-轴承座。
 
具体实施方式
 
下面结合附图的实施例进一步说明本发明的内容。
 
如图所示,一种带动力的同步带过渡装置,包括机架6、主动轴2、从动轴1、主同步带轮10、从同步带轮8、V形同步带7、链轮9、压板3、轴承座11、滑轨4、螺杆5等, V形同步带7在主同步带轮10,从同步带轮8上,连接成一个环形;从同步带轮8内带有轴承,从同步带轮8安装在从动轴1上,从动轴1通过压板3固定在机架6上;主同步带轮10安装在主动轴2上,主动轴2两端的轴承座11和滑块4安装在机架6上,可以对V形同步带7进行张紧;主动轴2上还装有链轮9,动力通过链轮9从外部传入。
 
本发明安装在链板输送机头尾各一套。张紧过程:转动螺杆5,螺杆5带着轴承座11以及主动轴2向下移动,推动到一定位置后停止。
 
所述V形同步带由柔性材料制造,包括V形塑料链板,橡胶,聚氨酯等。
 
Copyright © 宁波鄞州盖奇同步带轮有限公司 2007-2022 All Rights Reserved.
电话:4006-574-123/0574-27834692 传真:0574-27834691
地址:浙江省宁波市鄞州区姜山镇蔡郎桥村姜南路39-2 E-Mail:sales@belt-pulley.com  
浙ICP备09102982号 盖奇公司网络部提供技术支持 浙公网安备33021202003319号