当前位置:首页->二板注塑机承载螺旋副同步跟随动模板的锁模机构

 二板注塑机承载螺旋副同步跟随动模板的锁模机构

 
【授权公告号:CN207207033U;申请权利人:华南理工大学; 广州华新科实业有限公司;发明设计人:瞿金平;】
 
摘要:
 
本实用新型公开一种二板注塑机承载螺旋副同步跟随动模板的锁模机构,动模板和定模板之间通过拉杆连接,拉杆位于动模板外侧的一端设有锁模承载螺母,另一端设有锁模油缸,拉杆与锁模承载螺母形成第一滚动螺旋副;动模板外侧设有支撑座,支撑座上设有第二滚动螺旋副,第二滚动螺旋副与第一滚动螺旋副之间设有跟随同步带轮组件。其方法为移模油缸带动动模板进行开模或合模动作,动模板带动第二螺旋滚动螺旋副动作,第二滚动螺旋副通过跟随同步带轮组带动第一滚动螺旋副同步运行。本锁模机构可省去闸板和抱合螺母的使用,且无需设置专门的调模装置,可适应不同的模具厚度,使用灵活。 
 
主权项:
 
二板注塑机承载螺旋副同步跟随动模板的锁模机构,包括相配合的动模板和定模板,其特征在于,动模板和定模板之间通过拉杆连接,拉杆位于动模板外侧的一端上设有锁模承载螺母,拉杆的另一端设有锁模油缸,拉杆与锁模承载螺母形成第一滚动螺旋副;动模板外侧设有支撑座,支撑座上设有第二滚动螺旋副,第二滚动螺旋副与第一滚动螺旋副之间设有跟随同步带轮组件,在跟随同步带轮组件的带动下,第一滚动螺旋副和第二滚动螺旋副同步运行。 
 
 
要求:
 
1.二板注塑机承载螺旋副同步跟随动模板的锁模机构,包括相配合的动模板和定模板,其特征在于,动模板和定模板之间通过拉杆连接,拉杆位于动模板外侧的一端上设有锁模承载螺母,拉杆的另一端设有锁模油缸,拉杆与锁模承载螺母形成第一滚动螺旋副;动模板外侧设有支撑座,支撑座上设有第二滚动螺旋副,第二滚动螺旋副与第一滚动螺旋副之间设有跟随同步带轮组件,在跟随同步带轮组件的带动下,第一滚动螺旋副和第二滚动螺旋副同步运行。
 
2.根据权利要求1所述二板注塑机承载螺旋副同步跟随动模板的锁模机构,其特征在于,所述第二滚动螺旋副包括丝杆和丝母,丝杆与拉杆相平行设置,丝母设于丝杆上,丝母外周与支撑座连接。
 
3.根据权利要求2所述二板注塑机承载螺旋副同步跟随动模板的锁模机构,其特征在于,所述跟随同步带轮组件包括第一同步带轮、同步带和第二同步带轮,第一同步带轮与丝母同轴设于丝杆上,且第一同步带轮与丝母固定连接,第二同步带轮与锁模承载螺母同轴设于拉杆上,且第二同步带轮与锁模承载螺母固定连接,第一同步带轮与第二同步带轮之间通过同步带连接。
 
4.根据权利要求3所述二板注塑机承载螺旋副同步跟随动模板的锁模机构,其特征在于,所述同步带上还设有张紧轮和/或导向轮。
 
5.根据权利要求3所述二板注塑机承载螺旋副同步跟随动模板的锁模机构,其特征在于,所述拉杆有多个,第二同步带轮的个数与拉杆数量相等,每个拉杆上对应设置一个第二同步带轮,第一同步带轮通过同步带与各个第二同步带轮连接形成循环传动模式。
 
6.根据权利要求5所述二板注塑机承载螺旋副同步跟随动模板的锁模机构,其特征在于,所述拉杆有四个,各拉杆上对应设置一个锁模承载螺母和一个第二同步带轮。
 
7.根据权利要求5所述二板注塑机承载螺旋副同步跟随动模板的锁模机构,其特征在于,所述拉杆有多个时,每个拉杆对应设置一个独立的锁模油缸,各锁模油缸安装于定模板的外侧。
 
8.根据权利要求5所述二板注塑机承载螺旋副同步跟随动模板的锁模机构,其特征在于,所述拉杆有多个时,各拉杆与同一锁模油缸连接,锁模油缸呈圆环状结构嵌于定模板中。
 
9.根据权利要求1所述二板注塑机承载螺旋副同步跟随动模板的锁模机构,其特征在于,所述定模板和动模板之间还设有移模油缸。
 
 
二板注塑机承载螺旋副同步跟随动模板的锁模机构
技术领域
 
本实用新型涉及注塑机用的锁模设备领域,特别涉及一种二板注塑机承载螺旋副同步跟随动模板的锁模机构。
 
背景技术
 
传统注塑机的合模装置为三板式,由头板、二板和尾板组成,一般头板为固定板,二板通过拉杆与尾板连接,安装于尾板上的锁模油虹驱动二板进行开、合模动作,合模到位后,通过肘杆的力放大作用产生很大的锁模力,这种结构导致其锁模行程比较固定,在吨位较大时,其锁模系统的重量相当大。二板式注塑机相对于传统的三板机而言,省去了合模装置中的尾板,将锁模力直接作用在固定模具的两块模板上,因此该设备可节省大量材料和占地空间,其造价低、设备成型精度高。
 
二板合模机构主要有复合式和直压式两类,而二板直压式合模机构主要可分为无循环式、外循环式和内循环式三种。
 
二板复合式合模机构主要由定模板、动模板、四根拉杆、移模油缸、高压锁模油缸和抱闸机构组成,其定模板固定,动模板移动,四根拉杆上开环槽,定模板上固定四个高压油缸和两个快速移模油缸,快速移模油缸的活塞杆与动模板相连,高压油缸的活塞杆也是高压锁模拉杆。它的移模和锁模是分开的,移模采用小油缸,运动速度快、但是力很小,当移到位之后,合模采用锁模油缸,行程很小,合模的时候通过抱合闸闸住或者螺母卡住拉杆,再通过锁模油缸施加锁模力进行合模,但是这种方式稳定性差,而且调模麻烦。
 
外循环的合模机构是将锁模油缸固定安装在动模板上,在移模时锁模油缸随动,行程与开合模行程一样大,由于锁模油缸很长,直径较大,从而导致注塑机轴向距离增加。此外,里面的油交换采用外循环,移模时把不用的油排到油箱,另一端也从油箱吸油,使得管路损耗增大、能耗值增加。
 
内循环的合模机构是通过在锁模装置的活塞里面装有阀控,将缸体隔开成高压腔室与储备腔室,在移模时油可以进行循环交换,但是内循环增加了油缸长度,且要求精度较高,其设备制造成本高,且设备维护难度大。
 
因此,针对传统二板合模机构所存在的上述问题,开发一种机构稳定性与可靠性高的二板注塑机承载螺旋副同步跟随动模板的锁模机构,对注塑机的进一步推广应用具有重要意义。
 
实用新型内容
 
本实用新型的目的在于克服现有技术的不足,提供一种结构简单、成型效率高且设备稳定性较好的二板注塑机承载螺旋副同步跟随动模板的锁模机构。
 
本实用新型的技术方案为:一种二板注塑机承载螺旋副同步跟随动模板的锁模机构,包括相配合的动模板和定模板,动模板和定模板之间通过拉杆连接,拉杆位于动模板外侧的一端上设有锁模承载螺母,拉杆的另一端设有锁模油缸,拉杆与锁模承载螺母形成第一滚动螺旋副;动模板外侧设有支撑座,支撑座上设有第二滚动螺旋副,第二滚动螺旋副与第一滚动螺旋副之间设有跟随同步带轮组件,在跟随同步带轮组件的带动下,第一滚动螺旋副和第二滚动螺旋副同步运行。其中,第一滚动螺旋副的导程和第二滚动螺旋副的导程相一致。
 
所述第二滚动螺旋副包括丝杆和丝母,丝杆与拉杆相平行设置,丝母设于丝杆上,丝母外周与支撑座连接。其中,丝杆与锁模机构所在安装机架固定连接,丝母外周通过圆锥滚子轴承与支撑架连接。
 
所述跟随同步带轮组件包括第一同步带轮、同步带和第二同步带轮,第一同步带轮与丝母同轴设于丝杆上,且第一同步带轮与丝母固定连接,第二同步带轮与锁模承载螺母同轴设于拉杆上,且第二同步带轮与锁模承载螺母固定连接,第一同步带轮与第二同步带轮之间通过同步带连接。锁模机构运行时,第一同步带轮跟随丝母进行旋转转动,第一滚动螺旋副的导程和第二滚动螺旋副的导程相一致,动模板做移模运动时,第一同步带轮跟随丝母在丝杆上做旋转运动并通过同步带带动第二同步带轮转动,由于第二同步带轮与锁模承载螺母固定连接,因此带动锁模承载螺母在拉杆上做旋转运动,由于第二滚动螺旋副与第一滚动螺旋副的导程一致,从而实现锁模承载螺母随动模板同步运动。
 
所述同步带上还设有张紧轮和/或导向轮。当同步带运动行程较长时,设置张紧轮可保证同步带的张紧力,确保各同步带轮(包括第一同步带轮及各第二同步带轮)的正常运行,设置导向轮主要是对同步带的运动起辅助的导向作用。
 
所述拉杆有多个,第二同步带轮的个数与拉杆数量相等,每个拉杆上对应设置一个第二同步带轮,第一同步带轮通过同步带与各个第二同步带轮连接形成循环传动模式。
 
作为一种优选方案,所述拉杆有四个,各拉杆上对应设置一个锁模承载螺母和一个第二同步带轮。
 
所述拉杆有多个时,每个拉杆对应设置一个独立的锁模油缸,各锁模油缸安装于定模板的外侧。该结构形式中,定模板和动模板一般呈矩形状,多个拉杆及锁模油缸沿定模板的四周方向进行分布。
 
所述拉杆有多个时,各拉杆与同一锁模油缸连接,锁模油缸呈圆环状结构嵌于定模板中。该结构形式中,定模板和动模板一般呈圆形状,多个拉杆沿顶模板的圆周方向进行分布,锁模油缸呈圆环状,并嵌入安装于定模板中,当注塑机吨位较大时,采用该结构形式可以明显增大锁模油缸的面积,从而可在较低的系统压力下提供很大的锁模力。
 
所述定模板和动模板之间还设有移模油缸,其作用主要是将移模动作和锁模动作分开进行,移模时可采用小油缸,运动速度快,当移模到位之后,再采用锁模油缸进行合模动作,可缩短合模行程,有效节省注塑机的能耗。
 
本实用新型通过上述锁模机构可实现一种二板注塑机承载螺旋副同步跟随动模板的锁模方法,为:移模油缸带动动模板进行开模或合模动作,动模板带动第二螺旋滚动螺旋副动作,第二滚动螺旋副通过跟随同步带轮组带动第一滚动螺旋副同步运行。
 
其具体过程为:移模油缸带动动模板做移模运动时,驱动与动模板固定连接的丝母跟随动模板做直线运动,但是由于丝杆固定,从而迫使丝母在丝杆上旋转,并带动第一同步带轮转动,第一同步带轮通过同步带带动第二同步带轮转动,第二同步带轮的转动驱动锁模承载螺母在拉杆上做旋转运动,由于第二滚动螺旋副与第一滚动螺旋副的导程一致,从而实现锁模承载螺母随动模板同步运动。
 
本实用新型相对于现有技术,具有以下有益效果:
 
本二板注塑机承载螺旋副同步跟随动模板的锁模机构中,通过设置两组滚动螺旋副跟随动模板同步运行,可省去闸板和抱合螺母的使用,在锁模机构运行过程中,可省去合闸或抱合动作,且无需设置专门的调模装置,可适应不同的模具厚度,使用灵活,适用范围较广。
 
本二板注塑机承载螺旋副同步跟随动模板的锁模机构相对于传统的锁模机构,其结构简单、设备精度高、设备的制造成本和维护成本相对较低,同时,由于缩短了锁模机构的合模行程,可有效缩短注塑机的生产周期,提高生产效率。
 
附图说明
 
二板注塑机承载螺旋副同步跟随动模板的锁模机构
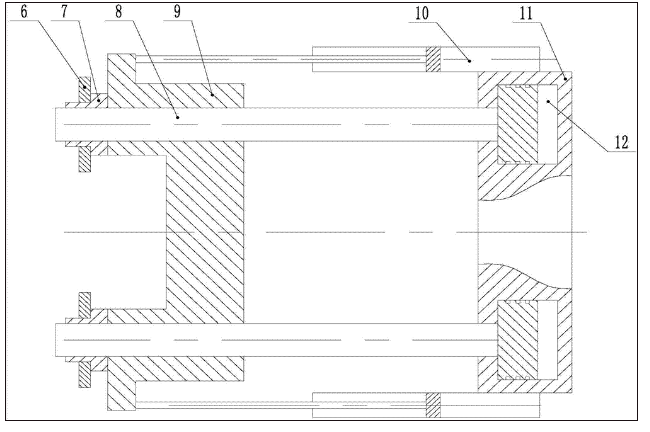
图1为本锁模机构实施例1的结构示意图。
 
二板注塑机承载螺旋副同步跟随动模板的锁模机构
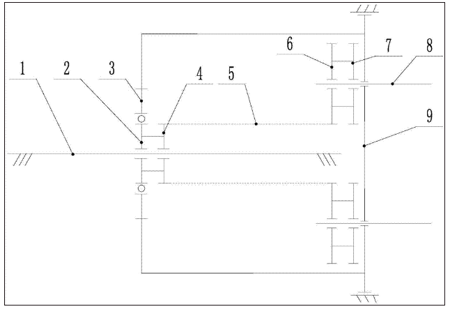
图2为本锁模机构的原理示意图。
 
二板注塑机承载螺旋副同步跟随动模板的锁模机构
图3为本锁模机构中跟随同步带轮组件的原理示意图。
 
二板注塑机承载螺旋副同步跟随动模板的锁模机构
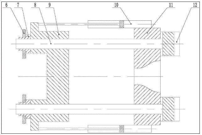
图4为本锁模机构实施例2的结构示意图。
 
上述各图中,各标号所示部件如下:1为丝杆,2为丝母,3为支撑座,4为第一同步带轮,5为同步带,6为第二同步带轮,7为锁模承载螺母,8为拉杆,9为动模板,10为移模油缸,11为定模板,12为锁模油缸,13为张紧轮。
 
具体实施方式
 
下面结合实施例,对本实用新型作进一步的详细说明,但本实用新型的实施方式不限于此。
 
实施例1
 
本实施例一种二板注塑机承载螺旋副同步跟随动模板的锁模机构,如图1所示,包括相配合的动模板9和定模板11,动模板和定模板之间通过四个拉杆8连接,每个拉杆上,位于动模板外侧的一端上设有锁模承载螺母7,另一端设有锁模油缸12,锁模油缸安装于定模板的外侧,拉杆与锁模承载螺母形成第一滚动螺旋副;如图2所示,动模板外侧设有支撑座3,支撑座上设有第二滚动螺旋副,第二滚动螺旋副包括丝杆1和丝母2,丝杆与拉杆相平行设置并固定于机架上,丝母设于丝杆上,丝母外周与支撑座固定连接;第二滚动螺旋副与第一滚动螺旋副之间设有跟随同步带轮组件,在跟随同步带轮组件的带动下,第一滚动螺旋副和第二滚动螺旋副同步运行。其中,第一滚动螺旋副的导程和第二滚动螺旋副的导程相一致。当动模板做移模运动时,第二滚动螺旋副的丝母被动模板驱动做直线位移,由于丝杆固定,迫使丝母旋转并通过跟随同步带轮组件驱动锁模承载螺母随动模板同步运动。
 
如图2或图3所示,跟随同步带轮组件包括第一同步带轮4、同步带5和第二同步带轮6,第一同步带轮与丝母同轴设于丝杆上,且第一同步带轮与丝母固定连接,第二同步带轮与锁模承载螺母同轴设于拉杆上,且第二同步带轮与锁模承载螺母固定连接,第一同步带轮与第二同步带轮之间通过同步带连接,第一同步带轮通过同步带与各个第二同步带轮连接形成循环传动模式。锁模机构运行时,第一同步带轮跟随丝母进行旋转转动,第一滚动螺旋副的导程和第二滚动螺旋副的导程相一致,动模板做移模运动时,第一同步带轮跟随丝母在丝杆上做旋转运动并通过同步带带动第二同步带轮转动,由于第二同步带轮与锁模承载螺母固定连接,因此带动锁模承载螺母在拉杆上做旋转运动,由于第二滚动螺旋副与第一滚动螺旋副的导程一致,从而实现锁模承载螺母随动模板同步运动。
 
如图3所示,同步带上还设有张紧轮13,张紧轮位于相邻的两个第二同步带轮之间。当同步带运动行程较长时,设置张紧轮可保证同步带的张紧力,确保各同步带轮(包括第一同步带轮及各第二同步带轮)的正常运行。
 
定模板和动模板之间还设有移模油缸10,其作用主要是将移模动作和锁模动作分开进行,移模时可采用小油缸,运动速度快,当移模到位之后,再采用锁模机构进行合模动作,可缩短合模行程,有效节省注塑机的能耗。
 
上述锁模机构可实现的二板注塑机承载螺旋副同步跟随动模板的锁模方法为:
 
移模油缸带动动模板进行开模或合模动作,动模板带动第二螺旋滚动螺旋副动作,第二滚动螺旋副通过跟随同步带轮组带动第一滚动螺旋副同步运行。
 
其具体过程为:移模油缸带动动模板做移模运动时,驱动与动模板固定连接的丝母跟随动模板做直线运动,但是由于丝杆固定,从而迫使丝母在丝杆上旋转,并带动第一同步带轮转动,第一同步带轮通过同步带带动第二同步带轮转动,第二同步带轮的转动驱动锁模承载螺母在拉杆上做旋转运动,由于第二滚动螺旋副与第一滚动螺旋副的导程一致,从而实现锁模承载螺母随动模板同步运动。
 
实施例2
 
本实施一种二板注塑机承载螺旋副同步跟随动模板的锁模机构,与实施例1相比较,其不同之处在于:如图4所示,拉杆有四个,各拉杆与同一锁模油缸连接,锁模油缸呈圆环状结构嵌于定模板中。该结构形式中,定模板和动模板呈圆形状,多个拉杆沿顶模板的圆周方向进行分布,锁模油缸呈圆环状,并嵌入安装于定模板中,当注塑机吨位较大时,采用该结构形式可以明显增大锁模油缸的面积,从而可在较低的系统压力下提供很大的锁模力。
 
如上所述,便可较好地实现本实用新型,上述实施例仅为本实用新型的较佳实施例,并非用来限定本实用新型的实施范围;即凡依本实用新型内容所作的均等变化与修饰,都为本实用新型权利要求所要求保护的范围所涵盖。

 

Copyright © 宁波鄞州盖奇同步带轮有限公司 2007-2022 All Rights Reserved.
电话:4006-574-123/0574-27834692 传真:0574-27834691
地址:浙江省宁波市鄞州区姜山镇蔡郎桥村姜南路39-2 E-Mail:sales@belt-pulley.com  
浙ICP备09102982号 盖奇公司网络部提供技术支持 浙公网安备33021202003319号