当前位置:首页->高速轻型货物提升机

 高速轻型货物提升机

 
【申请公布号:CN112978182A;申请权利人:天津万事达物流装备有限公司;发明设计人:刘顺福; 张华锋; 任永生; 许国军; 孙国瑞;】
 
摘要:
 
本说明书实施例提供一种高速轻型货物提升机,所述货物提升机包括:导轨、沿导轨运行的升降平台、大底板、使升降平台升降的升降机构;所述导轨通过轨道连接座与货架的多层穿梭车轨道固定连接;所述升降平台包括平台框架、与平台框架连接的导向轮、位于平台框架上的载货平台,所述导向轮与所述导轨滚动连接;所述升降机构包括固定在所述大底板上的驱动装置、与所述横梁连接的上同步带轮、固定在所述大底板上的下同步带轮、绕在上同步带轮与下同步带轮上并与所述升降平台固定连接的同步带,所述驱动装置带动同步带绕上同步带轮与下同步带轮运动,使所述升降平台升降。本发明的货物提升机,具有运行速度快、方便安装、重量轻、直线度好等优点。 
 
主权项:
 
1.一种高速轻型货物提升机,其特征在于,包括:导轨、与所述导轨顶部连接的横梁、沿所述导轨运行的升降平台、大底板、使所述升降平台升降的升降机构;所述导轨通过轨道连接座与货架的多层穿梭车轨道固定连接;所述升降平台包括平台框架、与所述平台框架连接的导向轮、位于所述平台框架上的载货平台,所述导向轮与所述导轨滚动连接;所述升降机构包括固定在所述大底板上的驱动装置、与所述横梁连接的上同步带轮、固定在所述大底板上的下同步带轮、绕在所述上同步带轮与下同步带轮上并与所述升降平台固定连接的同步带,所述驱动装置带动所述同步带绕所述上同步带轮与下同步带轮运动,使所述升降平台升降。 
 
要求:
 
1.一种高速轻型货物提升机,其特征在于,包括:导轨、与所述导轨顶部连接的横梁、沿所述导轨运行的升降平台、大底板、使所述升降平台升降的升降机构;
 
所述导轨通过轨道连接座与货架的多层穿梭车轨道固定连接;
 
所述升降平台包括平台框架、与所述平台框架连接的导向轮、位于所述平台框架上的载货平台,所述导向轮与所述导轨滚动连接;
 
所述升降机构包括固定在所述大底板上的驱动装置、与所述横梁连接的上同步带轮、固定在所述大底板上的下同步带轮、绕在所述上同步带轮与下同步带轮上并与所述升降平台固定连接的同步带,所述驱动装置带动所述同步带绕所述上同步带轮与下同步带轮运动,使所述升降平台升降。
 
2.根据权利要求1所述的货物提升机,其特征在于,所述横梁的两端与所述货架的立柱固定连接。
 
3.根据权利要求2所述的货物提升机,其特征在于,所述导轨与平台框架均为铝合金型材且预制有凹槽。
 
4.根据权利要求3所述的货物提升机,其特征在于,所述平台框架的侧棱框上固定连接有导向轮座板,且所述导向轮座板相对于所述平台框架突出设置;所述导向轮座板上转动连接有至少一组导向轮组,所述导向轮组包括三个导向轮,所述三个导向轮的圆弧面分别与所述导轨的三个侧面接触,且能够沿所述导轨上下滚动。
 
5.根据权利要求3所述的货物提升机,其特征在于,所述载货平台包括两条平行设置的辊筒安装板和若干个辊筒;
 
所述载货平台位于所述平台框架的下棱框的上方,且两条所述辊筒安装板与所述下棱框固定连接;
 
所述若干个辊筒水平并列设置在两条所述辊筒安装板之间,且所述若干个辊筒的两端分别与两条所述辊筒安装板转动连接;
 
所述若干个辊筒包括电动辊筒和无动力辊筒,所述电动辊筒运行,带动货物实现入货或出货动作。
 
6.根据权利要求5所述的货物提升机,其特征在于,两条所述辊筒安装板上方固定连接有两条平行的导向条,货物位于两条所述导向条之间;
 
所述若干个辊筒外侧包覆有一层聚氨酯或天然橡胶。
 
7.根据权利要求1所述的货物提升机,其特征在于,所述驱动装置位于所述升降平台的下方,所述驱动装置包括减速电机与驱动箱体;
 
所述下同步带轮包括位于所述驱动箱体内的驱动轮、张紧轮与过渡轮,所述张紧轮位于所述驱动轮与过渡轮的中间,且相对于所述驱动轮与过渡轮错位设置;所述驱动轮的中心轴与所述减速电机的转轴通过联轴器传动连接。
 
8.根据权利要求7所述的货物提升机,其特征在于,所述上同步带轮的中心轴与所述横梁转动连接,所述上同步带轮竖直方向与所述过渡轮对齐。
 
9.根据权利要求8所述的货物提升机,其特征在于,所述平台框架的侧棱框上固设有竖直方向对齐的同步带上夹板和同步带下夹板;
 
所述同步带通过所述同步带上夹板和同步带下夹板与所述平台框架固定,所述同步带拉紧并绕过所述上同步带轮、驱动轮、张紧轮与过渡轮;所述同步带为聚氨酯同步带;
 
所述减速电机的转轴带动所述驱动轮顺时针或逆时针转动,进而带动所述同步带运动,使所述升降平台升降。
 
10.根据权利要求1所述的货物提升机,其特征在于,还包括固定在所述导轨上部的上缓冲器和固定在所述大底板上的下缓冲器,所述上缓冲器与下缓冲器竖直方向均与所述平台框架对齐。
 
高速轻型货物提升机
技术领域
 
本说明书一个或多个实施例涉及物流仓储技术领域,尤其涉及一种高速轻型货物提升机。
 
背景技术
 
随着自动化立体仓库在我国的迅速普及,对仓库自动化设备的安全性、集成度、运行效率、综合成本等方面提出了更高的要求。利用立体仓库自动化设备可实现仓库高层合理化,存取自动化,操作简便化。
 
一般轻型料箱立体仓库都配备有轻型货物提升机,使用轻型货物提升机将料箱或纸箱等轻型货物提升至各层货架。货物提升机作为自动化立体仓库的核心设备,其运行效率决定着整个仓库的效能。提升机在提升货物的过程中,要实现货物高度的变化以及横向的转移,在此过程中,安全性与稳定性至关重要。
 
货物提升机一般配合多层穿梭车使用,为了保证多层穿梭车能够准确地完成货物在货架和提升机之间的运输,需要将提升机与货架之间的位置定位准确,而现有的货物提升机,一般采用重量大、体积大的整体式结构或者采用成本高、体积大的框架式结构,安装运输不便,无法一次完成与货架位置的准确定位,需要多次调试;另外,现有的货物提升机结构复杂,既装有横截面积大、重量大的立柱,又有装有供升降平台升降的导轨,使货物提升机在仓库中且占用的空间较大,已经不能满足现阶段自动化立体仓库的使用需求以及客户越来越高的要求。
 
发明内容
 
有鉴于此,本说明书一个或多个实施例的目的在于提出一种高速轻型货物提升机,以克服现有技术中的不足。
 
基于上述目的,本说明书一个或多个实施例提供了一种高速轻型货物提升机包括:导轨、与所述导轨顶部连接的横梁、沿所述导轨运行的升降平台、大底板、使所述升降平台升降的升降机构;
 
所述导轨通过轨道连接座与货架的多层穿梭车轨道固定连接;
 
所述升降平台包括平台框架、与所述平台框架连接的导向轮、位于所述平台框架上的载货平台,所述导向轮与所述导轨滚动连接;
 
所述升降机构包括固定在所述大底板上的驱动装置、与所述横梁连接的上同步带轮、固定在所述大底板上的下同步带轮、绕在所述上同步带轮与下同步带轮上并与所述升降平台固定连接的同步带,所述驱动装置带动所述同步带绕所述上同步带轮与下同步带轮运动,使所述升降平台升降。
 
进一步的,所述横梁的两端与所述货架的立柱固定连接。
 
进一步的,所述导轨与平台框架均为铝合金型材且预制有凹槽。
 
进一步的,所述平台框架的侧棱框上固定连接有导向轮座板,且所述导向轮座板相对于所述平台框架突出设置;所述导向轮座板上转动连接有至少一组导向轮组,所述导向轮组包括三个导向轮,所述三个导向轮的圆弧面分别与所述导轨的三个侧面接触,且能够沿所述导轨上下滚动。
 
进一步的,所述载货平台包括两条平行设置的辊筒安装板和若干个辊筒;
 
所述载货平台位于所述平台框架的下棱框的上方,且两条所述辊筒安装板与所述下棱框固定连接;
 
所述若干个辊筒水平并列设置在两条所述辊筒安装板之间,且所述若干个辊筒的两端分别与两条所述辊筒安装板转动连接;
 
所述若干个辊筒包括电动辊筒和无动力辊筒,所述电动辊筒运行,带动货物实现入货或出货动作。
 
进一步的,两条所述辊筒安装板上方固定连接有两条平行的导向条,货物位于两条所述导向条之间;
 
所述若干个辊筒外侧包覆有一层聚氨酯或天然橡胶。
 
进一步的,所述驱动装置位于所述升降平台的下方,所述驱动装置包括减速电机与驱动箱体;
 
所述下同步带轮包括位于所述驱动箱体内的驱动轮、张紧轮与过渡轮,所述张紧轮位于所述驱动轮与过渡轮的中间,且相对于所述驱动轮与过渡轮错位设置;所述驱动轮的中心轴与所述减速电机的转轴通过联轴器传动连接。
 
进一步的,所述上同步带轮的中心轴与所述横梁转动连接,所述上同步带轮竖直方向与所述过渡轮对齐。
 
进一步的,所述平台框架的侧棱框上固设有竖直方向对齐的同步带上夹板和同步带下夹板;
 
所述同步带通过所述同步带上夹板和同步带下夹板与所述平台框架固定,所述同步带拉紧并绕过所述上同步带轮、驱动轮、张紧轮与过渡轮;所述同步带为聚氨酯同步带;
 
所述减速电机的转轴带动所述驱动轮顺时针或逆时针转动,进而带动所述同步带运动,使所述升降平台升降。
 
进一步的,所述货物提升机还包括固定在所述导轨上部的上缓冲器和固定在所述大底板上的下缓冲器,所述上缓冲器与下缓冲器竖直方向均与所述平台框架对齐。
 
本发明的高速轻型货物提升机,具有以下有益效果:
 
1)采用无立柱设计,更方便安装、成本低且占用空间小;
 
2)直接将升降平台上下运行的导轨与货架固定,震动、变形小、整体刚性好,且能与货架准确定位,不需要多次调试;
 
3)升降平台框架采用预制有凹槽的铝合金型材,重量更轻、有效载荷更高,运行速度更快,效率更高;导轨采用预制有凹槽的铝合金型材,重量更轻、直线度好,凹槽内可配合使用弹性螺母块等连接件,方便安装。
 
4)采用聚氨酯同步带,噪声小。
 
附图说明
 
为了更清楚地说明本说明书一个或多个实施例或现有技术中的技术方案,下面将对实施例或现有技术描述中所需要使用的附图作简单地介绍,显而易见地,下面描述中的附图仅仅是本说明书一个或多个实施例,对于本领域普通技术人员来讲,在不付出创造性劳动的前提下,还可以根据这些附图获得其他的附图。
 
高速轻型货物提升机
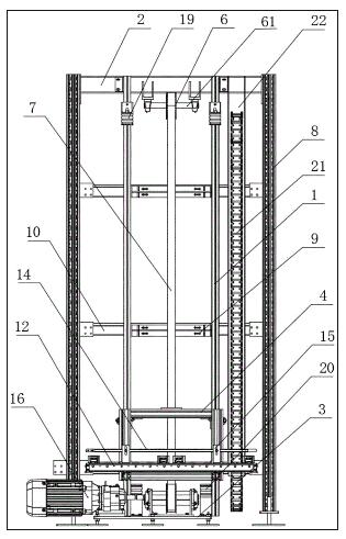
图1为本说明书一个或多个实施例中高速轻型货物提升机的结构示意图;
 
高速轻型货物提升机
图2为本说明书一个或多个实施例中高速轻型货物提升机与货架连接的结构示意图;
 
高速轻型货物提升机
图3为本说明书一个或多个实施例中高速轻型货物提升机的升降平台的结构示意图;
 
高速轻型货物提升机
图4为本说明书一个或多个实施例中高速轻型货物提升机的驱动装置的结构示意图;
 
高速轻型货物提升机
图5为本说明书一个或多个实施例中导向轮组与导轨接触的俯视图;
 
高速轻型货物提升机
图6为本说明书一个或多个实施例中铝合金导轨的接长方式示意图;
 
高速轻型货物提升机
图7为本说明书一个或多个实施例中高速轻型货物提升机的传动原理图。
 
图中:1、导轨;2、横梁;3、大底板;4、平台框架;41、连接角;42、同步带上夹板;43、同步带下夹板;5、导向轮;6、上同步带轮;61、上同步带轮中心轴;7、同步带;8、货架立柱;9、轨道连接座;10、多层穿梭车轨道;11、导向轮座板;12、辊筒安装板;13、辊筒;14、导向条;15、导向条连接板;16、减速电机;161、减速电机转轴;17、驱动箱体;171、驱动轮;172、张紧轮;173、过渡轮;18、联轴器;19、上缓冲器;20、下缓冲器;21、拖链;22、拖链槽;23、凹槽;24、槽条连接件;25、紧固螺栓。
 
具体实施方式
 
为使本公开的目的、技术方案和优点更加清楚明白,以下结合具体实施例,并参照附图,对本公开进一步详细说明。
 
需要说明的是,除非另外定义,本说明书一个或多个实施例使用的技术术语或者科学术语应当为本公开所属领域内具有一般技能的人士所理解的通常意义。本说明书一个或多个实施例中使用的“第一”、“第二”以及类似的词语并不表示任何顺序、数量或者重要性,而只是用来区分不同的组成部分。“包括”或者“包含”等类似的词语意指出现该词前面的元件或者物件涵盖出现在该词后面列举的元件或者物件及其等同,而不排除其他元件或者物件。“连接”或者“相连”等类似的词语并非限定于物理的或者机械的连接,而是可以包括电性的连接,不管是直接的还是间接的。“上”、“下”、“左”、“右”等仅用于表示相对位置关系,当被描述对象的绝对位置改变后,则该相对位置关系也可能相应地改变。
 
为解决背景技术中提及的“现有的轻型货物提升机重量大、体积大、成本高、安装运输不便、占用空间大以及无法一次完成与货架位置的准确定位”等技术问题,参考图1、2和3,本说明书一个或多个实施例提供一种高速轻型货物提升机,适用于提升料箱或纸箱等轻型货物,所述货物提升机包括:
 
两根竖直平行的导轨1、与所述导轨1顶部连接的横梁2、沿所述导轨1运行的升降平台、大底板3、使所述升降平台升降的升降机构。
 
为了使所述升降平台沿所述导轨1上下运行时更稳定,震动、变形小,并且能直接与货架准确定位,将两根所述导轨1通过轨道连接座9与所述货架的多层穿梭车轨道10固定连接。
 
具体的,所述轨道连接座9的两端分别与两根所述导轨1相对的两个面固定连接,所述轨道连接座9的侧面与所述货架的多层穿梭车轨道10的侧面固定连接。另外,由于现有技术中大部分货物提升机位于货架一侧的外部(仓库内有多个货架,提升机与其中某列货架正对应设置),其导轨是固定在提升机内部的,导轨容易变形,而本实施例将导轨固定在所述货架的一侧的内部,整体刚性好。
 
进一步更优的,由于多层穿梭车轨道10固定在所述货架的每一层,可以将两根所述导轨1通过轨道连接座9与所述货架每一层的多层穿梭车轨道10固定连接,使得整体的刚性更好。
 
进一步的,所述升降平台包括平台框架4、与所述平台框架4连接的导向轮5、位于所述平台框架4上的载货平台,所述导向轮5与所述导轨1滚动连接。
 
进一步的,所述升降机构包括固定在所述大底板3上的驱动装置、与所述横梁2连接的上同步带轮6、固定在所述大底板3上的下同步带轮、绕在所述上同步带轮6与下同步带轮上并与所述升降平台固定连接的同步带7,所述驱动装置带动所述同步带7绕所述上同步带轮6与下同步带轮运动,实现所述升降平台的升降。
 
由于现有技术中大部分货物提升机采用单立柱或双立柱结构,为了保证货物提升机的刚度,所采用的立柱横截面积大、重量大、不易安装且造价高。而本实施例上述技术方案中的货物提升机采用无立柱设计,直接将升降平台上下运行的导轨1通过轨道连接座9与货架固定,更方便安装、成本更低且占用空间小;另外,采用同步带轮与同步带的传动方式,传动精度高、成本低且方便维修更换。
 
作为一个可选的实施例,为了使所述导轨1与货架进一步固定,所述横梁2的两端与货架立柱8固定连接;具体的,两根所述导轨1顶部的侧面通过连接角等连接件与所述横梁2的一个侧面固定连接,所述横梁2的两端相对于两根所述导轨1水平方向突出设置,且所述横梁2的两端分别与一列货架的两根立柱固定连接。
 
作为一个可选的实施例,所述导轨1与平台框架4均为四棱柱铝合金型材且预制有凹槽23。参考图6,示出了四个侧面分别预制有一个凹槽23的铝合金型材,本发明对铝合金型材的凹槽23数量不做限定,也可以四个侧面分别预制有两个凹槽23或其中两个平行的侧面分别预制有一个凹槽23、另两个平行的侧面分别预制有两个凹槽23。
 
另外,图6还示出了铝合金型材的接长方式,适用于本发明对所述导轨1的接长。具体的,若所述货物提升机的提升高度无法达到所述货架的高度,可对两根所述导轨1统一进行接长,首先将两根所述导轨1从所述横梁2和货架上拆卸下来,再将槽条连接件24的两端分别从端部插入所述导轨凹槽23和接长铝合金型材的凹槽23内,最后用紧固螺栓25与所述槽条连接件24的内螺纹孔配合旋紧,完成接长。
 
本实施例中,所述导轨1采用预制有凹槽23的铝合金型材,重量更轻、直线度好,凹槽23内可配合使用弹性螺母块、槽条连接件24等,方便安装连接座等连接件,且可以根据货架高度灵活接长;所述升降平台框架4采用预制有凹槽23的铝合金型材,重量更轻、有效载荷更高,运行速度更快,效率更高。
 
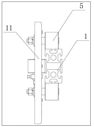
作为一个可选的实施例,所述平台框架4的侧棱框上固定连接有导向轮座板11,且所述导向轮座板11相对于所述平台框架4突出设置;所述导向轮座板11上转动连接有至少一组导向轮组,所述导向轮组包括三个导向轮5,所述三个导向轮5的圆弧面分别与所述导轨1的三个侧面接触,且能够沿所述导轨1上下滚动;每个所述导向轮5采用聚氨酯材料制成。
 
具体的,所述平台框架4由侧棱框和与所述侧棱框垂直的下棱框组成,所述平台框架4的侧面呈“L”型,所述侧棱框由四条呈矩形的侧棱组成,所述平台框架4每两条棱之间的交接处通过连接角41固定连接,所述连接角41为直角连接件,通过紧固螺栓穿过所述连接角41的通孔,与设置在所述平台框架4凹槽23内的弹性螺母块旋紧,固定所述平台框架4,使所述平台框架4形成一个轻便、稳定的整体;
 
所述平台框架4两条竖直的侧棱的外侧面上分别固定连接有用于安装所述导向轮5的两个导向轮座板11,两个所述导向轮座板11相互对称,且两个所述导向轮座板11相对于所述平台框架4突出设置。
 
进一步更优的,每个所述导向轮座板11上转动连接有两组上下并列设置的导向轮组,每组所述导向轮组包括两个相互对称设置的第一导向轮和位于两个所述第一导向轮中间的一个第二导向轮,所述第一导向轮的中心轴与所述第二导向轮的中心轴垂直;每个所述导向轮5的中心轴都与所述导向轮座板11固定连接,每个所述导向轮5都可绕其中心轴转动。
 
参考图5,为所述导向轮组与所述导轨1接触的俯视图,所述第一导向轮和两个所述第二导向轮的圆弧面分别与所述导轨1的三个侧面接触,且能够沿所述导轨1上下滚动。
 
本实施例中,设置四组呈四边形分布的导向轮组,可减轻每组导向轮组的受力,并且每组导向轮组均与所述导轨1的三个侧面接触,可保证升降平台能够沿所述导轨1上下高速、平稳定地运行;每个所述导向轮5均采用聚氨酯材料制成,耐磨性好,噪音低。
 
作为一个可选的实施例,所述载货平台包括两条平行设置的辊筒安装板12和若干个辊筒13;所述辊筒安装板12为薄钢板折弯成型,其断面呈“凹”字形,所述辊筒安装板12的每个面都设置有若干个密布的小通孔,方便各种附件的安装和调节;所述若干个辊筒13水平并列设置在两条所述辊筒安装板12之间,所述若干个辊筒13两端的轴穿过所述辊筒安装板12侧面的小通孔,并可在两条所述辊筒安装板12之间转动。
 
进一步的,所述载货平台位于所述平台框架4的下棱框的上方,且两条所述辊筒安装板12与所述平台框架4的下棱框固定连接;具体的,可利用紧固螺栓穿过所述辊筒安装板12下表面的通孔,与所述下棱框内的弹性螺母块配合旋紧,从而将所述载货平台固定在所述平台框架4上。
 
进一步的,所述若干个辊筒13包括电动辊筒和无动力辊筒,当所述载货平台上需要入货或者出货时,所述电动辊筒运行,通过货物与所述辊筒13之间的摩擦力实现入货或者出货动作。
 
本发明的货物提升机位于货架内部,可配合货架上的多层穿梭车使用,具体的,当仓库出货时,所述多层穿梭车将货架上的货物运送至与所述载货平台对接,随后所述辊筒将货物传送至所述载货平台中间位置,所述载货平台上升或下降到指定位置后,将货物运输至后续轨道上,完成出库操作;当仓库入货时,所述载货平台将货物通过升降机构提升到货架指定高度,所述多层穿梭车与货物对接,随后所述辊筒将货物传送至所述多层穿梭车上,所述多层穿梭车再将货物运送至货架的各个位置,完成入库操作。
 
进一步更优的,为了增加货物与所述辊筒13间的摩擦力,所述辊筒13外侧一般包覆有一层聚氨酯或天然橡胶。
 
进一步更优的,两条所述辊筒安装板12的上方固定连接有两条平行的导向条14,具体的,所述辊筒安装板12的上端与两个导向条连接板15的下端固定连接,两个所述导向条连接板15的上端与所述导向条14固定连接;货物位于两条所述导向条14之间,所述导向条14对货物起导向和阻挡作用,防止货物在升降过程中从所述载货平台上掉落或偏离。
 
作为一个可选的实施例,参考图1与图4,所述驱动装置固定在所述大底板3上且位于所述升降平台的下方,所述驱动装置包括减速电机16与驱动箱体17。将所述驱动装置固定在所述大底板3上,方便安装且便于后期的维修。
 
进一步的,所述下同步带轮包括位于所述驱动箱体17内的驱动轮171、张紧轮172与过渡轮173,所述驱动轮171、张紧轮172与过渡轮173的中心轴并列设置,所述张紧轮172位于所述驱动轮171与过渡轮173的中间,且相对于所述驱动轮171与过渡轮173错位设置;所述驱动轮171的中心轴与驱动轮171过盈配合,所述驱动轮171的中心轴的一端穿过所述驱动箱体17与所述减速电机转轴161通过联轴器18传动连接,所述驱动轮171的中心轴的两端与所述驱动箱体17连接处设置有轴承;所述张紧轮172与过渡轮173的中心轴的两端均与所述驱动箱体17固定连接,所述张紧轮172与过渡轮173可绕其中心轴转动。
 
进一步的,所述上同步带轮6竖直方向与所述过渡轮173对齐,且所述上同步带轮中心轴61与所述过渡轮173的中心轴平行;所述上同步带轮中心轴61的两端通过连接座与所述横梁2转动连接。
 
作为一个可选的实施例,所述平台框架4的两条水平的侧棱上分别固设有竖直方向对齐的同步带上夹板42和同步带下夹板43;所述同步带7通过所述同步带上夹板42和同步带下夹板43与所述平台框架4固定,具体的,所述同步带上夹板42和同步带下夹板43内部设有密布的齿条,能够将所述同步带7压紧,从而使所述同步带7与所述平台框架4固定;另外,所述同步带7为聚氨酯同步带,能够使所述升降平台上下升降时噪声更小。
 
进一步的,参考图7,示出了所述升降平台的升降原理,所述同步带7拉紧并绕过所述上同步带轮6、驱动轮171、张紧轮172与过渡轮173;由于所述同步带7又与所述平台框架4固定,当所述减速电机转轴161带动所述驱动轮171顺时针或逆时针转动时,所述同步带7会带动所述平台框架4沿所述导轨1上下运动,以使所述升降平台升降。其中,所述张紧轮172起张紧作用,所述上同步带轮6与过渡轮173起过渡和导向作用。
 
进一步更优的,所述同步带7可以为一根也可以为多根,具体根据货物载荷和运行速度而定。
 
作为一个可选的实施例,所述货物提升机还包括通过连接座分别固定在两根所述导轨1上部的两个上缓冲器19和固定在所述大底板3上的两个下缓冲器20,所述上缓冲器19与下缓冲器20竖直方向均与所述平台框架4对齐。所述上缓冲器19与下缓冲器20为所述升降平台提供缓冲,避免所述升降平台失控时撞坏所述货物提升机。
 
作为一个可选的实施例,所述大底板3为厚钢板,所述大底板的四周边缘处设置有调节水平度的若干个化学锚栓,用于保证所述驱动装置的安装精度。
 
作为一个可选的实施例,所述货物提升机还包括与所述升降平台固定连接的拖链21,以及位于所述导轨1的一侧并货架固定连接的用于安放所述拖链21的拖链槽22,所述拖链21内布置有电缆,所述拖链21可相对于所述拖链槽22上下运动。由于所述升降平台上布置有各种传感器和电器件,需要电缆供电,所述升降平台上下运动时,所述电缆也要跟随所述升降平台上下运动,因而将所述电缆布置在所述拖链21内,对所述电缆起到支撑和保护作用的同时,带动所述电缆跟随所述升降平台上下运动;进一步的,所述拖链槽22可以支撑所述拖链21,并对所述拖链21起导向作用,使所述拖链21不发生扭转和偏离。
 
所属领域的普通技术人员应当理解:以上任何实施例的讨论仅为示例性的,并非旨在暗示本公开的范围(包括权利要求)被限于这些例子;在本公开的思路下,以上实施例或者不同实施例中的技术特征之间也可以进行组合,步骤可以以任意顺序实现,并存在如上所述的本说明书一个或多个实施例的不同方面的许多其它变化,为了简明它们没有在细节中提供。
 
尽管已经结合了本公开的具体实施例对本公开进行了描述,但是根据前面的描述,这些实施例的很多替换、修改和变型对本领域普通技术人员来说将是显而易见的。
 
本说明书一个或多个实施例旨在涵盖落入所附权利要求的宽泛范围之内的所有这样的替换、修改和变型。因此,凡在本说明书一个或多个实施例的精神和原则之内,所做的任何省略、修改、等同替换、改进等,均应包含在本公开的保护范围之内。
 
Copyright © 宁波鄞州盖奇同步带轮有限公司 2007-2022 All Rights Reserved.
电话:4006-574-123/0574-27834692 传真:0574-27834691
地址:浙江省宁波市鄞州区姜山镇蔡郎桥村姜南路39-2 E-Mail:sales@belt-pulley.com  
浙ICP备09102982号 盖奇公司网络部提供技术支持 浙公网安备33021202003319号